Планировка маленьких квартир: советы экспертов

Дмитрий Жигалев и Сергей Бахарев, основатели студии «Однушечка», уверены: небольшая площадь квартиры не повод отказываться от привычного комфорта. Главное — иметь четкий план!

Самый главный и популярный вопрос, когда речь заходит о планировке однокомнатной квартиры: как организовать спальное место? Будет ли это диван-трансформер или, помимо дивана, нужна кровать с полноценным удобным матрасом? А может быть, достаточно только кровати? Все очень индивидуально и зависит в первую очередь от конкретной семьи/человека.

КВАРТИРА-СТУДИЯ

Сейчас на рынке малогабаритного жилья популярен формат квартир-студий, где нет отдельного помещения для кухни. Это одна-единственная комната плюс санузел. Очень похоже на формат гостиничных апартаментов, где в номере есть небольшой кухонный блок. Как правило, такие квартиры предназначены для одного-двух человек. Несмотря на изначально ограниченные маленькой площадью возможности, есть множество способов организовать жизненное пространство.

Какого бы размера ни была квартира, любому человеку для комфортной жизни необходим минимальный набор функциональных зон:

  • место для хранения уличной повседневной одежды и обуви
  • место для хранения инвентаря для уборки
  • и бытовой химии
  • санузел
  • место для стирки и глажки одежды
  • место для хранения вещей и одежды
  • зона приготовления и приема пищи
  • диванно-телевизионная зона
  • спальное место
  • рабочее место
  • место для домашнего питомца

При работе над планировкой все эти зоны, как кусочки паззла, должны сложиться в единый интерьер. И чем меньше квартира, тем больше функций нужно объединить в одной зоне, больше внимания уделять всем решениям, расставлять приоритеты и готовиться к компромиссам.

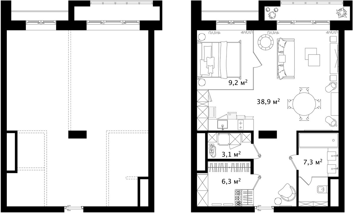
В таких случаях имеет смысл максимально задействовать всю имеющуюся площадь и объединить изолированную прихожую с жилой комнатой, чтобы избежать замкнутых объемов, а визуальное зонирование, если оно необходимо, можно впоследствии решить отделочными материалами. В некоторых случаях (нужно обязательно проконсультироваться в жилищной инспекции!) очень помогает присоединение к комнате лоджии. В данном случае нам это позволили, и эти 4–5 кв. м стали существенным прибавлением площади.

В подобных квартирах можно по-разному решать вопрос со спальным местом. Если делать ставку на вариативность и многофункциональность, то отличным решением могут стать мебельные системы, которые позволяют днем пользоваться диваном, а в ночное время из стены опускать кровать с комфортным матрасом. Такие делают фабрики Clei или Tumidei, а также отечественные мастера компании Olissys.

Бывают квартиры-апартаменты, где есть возможность, помимо дивана, выделить место и для кровати. В таком случае нужно продумать, как отделить дневную зону от ночной. Это может быть: раздвижная перегородка; текстильный занавес; смарт-стекло, которое из прозрачного становится непрозрачным. В качестве разделяющего элемента может выступать какая-то мебельная конструкция: например, стеллаж или кухонная мебель.

Диван-трансформер или полноценная кровать? а может, то и другое?

Если есть возможность, санузлы лучше расширить за счет коридора, чтобы организовать там место для установки стиральной, а в идеале и сушильной машин. И там же поставить шкаф для бельевой корзины, хранения бытовой химии, необходимого запаса полотенец и салфеток. Чаще всего при выборе между душевой и ванной предпочтение отдается душевой, но если в семье есть маленький ребенок, без ванны не обойтись.

МАЛЕНЬКАЯ ОДНОКОМНАТНАЯ КВАРТИРА

Следующий в размерной линейке квартир — классический вариант с отдельными помещениями: прихожей, санузлом, жилой комнатой, кухней и лоджией. Тут тоже есть несколько приемов планировки в зависимости от задач.

Вариант 1: объединенная кухня и комната + изолированная спальня

Почти все то же самое, как в ситуации с квартирой-студией: присоединяем прихожую/коридор к общественной зоне, расширяем санузел за счет коридора. И делаем изолированную приватную зону — полноценную спальню с кроватью.

Огромной удачей станет возможность выделить отдельное место под гардеробную для одежды, кладовую для стиральной и сушильной машин, инвентаря и т.

Обратите внимание: Делаем дизайн квартиры за 10 минут!.

д. Это уже совсем другой уровень комфорта, характерный для больших квартир.

Огромной удачей станет возможность выделить отдельное место под гардеробную для одежды, кладовую для стиральной и сушильной машин, инвентаря и т. д. Это уже совсем другой уровень комфорта, характерный для больших квартир.

Вариант 2: объединенная кухня и комната + спальня в нише

Спальное место можно устроить в нише в гостиной, но при этом желательно оставить ее открытой или построить раздвижные конструкции, которые можно закрывать и открывать, чтобы в спальне легче дышалось.

Вариант 3: кухня-ниша со стороны гостиной + изолированная спальня

Суть этого метода в том, что на территории кухонной зоны или коридора выделяется ниша, в которой устанавливается либо вся кухонная композиция, либо ее часть: мойка, посудомоечная машина, варочная панель. При этом на освободившейся территории кухни можно устроить спальню, но для согласования перепланировки ее нужно обозначать как нежилое помещение (кабинет, гардеробная). Получится полноценная дополнительная комната.

Вариант 4: просторная студия без кровати

В таких вариантах изолированными остаются только санузел и гардеробная, а вся остальная площадь квартиры становится единым пространством-студией. В качестве спального места выступает раскладной диван.

Квартиры с газовыми плитами

В центре Москвы много дореволюционных домов, где в советское время изначально просторные квартиры дробили на несколько маленьких. Очень часто такие квартиры оборудованы газом. При работе над их перепланировкой возникают дополнительные сложности.

Первым делом нужно решить вопрос рационального использования драгоценной площади. Объединяем большую прихожую/холл с маленькими комнатой и кухней, получая при этом единую зону общего пользования. В идеале входную дверь и межкомнатные двери разводим таким образом, чтобы «чистый» маршрут из спальни в санузел через комнату не пересекался с «грязной» зоной прихожей. К сожалению, не всегда есть такая возможность, но если она есть, то это дополнительный уровень комфорта.

Во входной зоне не забываем предусмотреть место для хранения обуви, мелкие ящики для ключей, телефона, чистящих средств для обуви, расчесок и т. д. Должно быть место для хранения одежды. Одну из секций встроенного шкафа отдаем для зоны хранения пылесоса, уборочного инвентаря, стремянки, гладильной доски и разных хозмелочей.

Полезную площадь санузла тоже расширили за счет не такой важной площади холла. Кроме минимального набора — унитаз, раковина, душ и полотенцесушитель — удалось выделить место для установки стиральной и сушильной машин, накопительного водонагревателя, корзины для белья и полок для бытовой химии, спрятав этот хозблок за распашными стендовыми панелями. Это еще один лайфхак с применением встроенных и скрытых решений, которые позволяют максимально использовать весь объем от пола до потолка и выглядят при этом как часть стены, а не как отдельно стоящий предмет. Из этих же соображений мы встроили громоздкий кухонный модуль с холодильником в нишу.

Если места мало, лоджией и прихожей можно пожертвовать

Существуют ограничения на объединение жилой комнаты с кухней, оборудованной газовой плитой. В данном случае мы отказались от газа и заменили газовую плиту на электрическую небольшой мощности. Это позволило объединить кухню с комнатой. Длина кухонной столешницы всего 1950 мм, но там поместились мойка, посудомоечная машина, духовой шкаф с СВЧ, варочная панель и выдвижные ящики для столовых приборов, специй и чистящих средств, а большую часть посуды убрали в настенные шкафы, которые мы сделали до потолка для увеличения вместимости. Если бы мы решили оставить газовую плиту, то между кухней и гостиной установили бы раздвижные стеклянные перегородки до потолка, которые должны складываться в простенке за креслом. Наличие раздвижных перегородок поможет согласовать перепланировку.

При планировании спальни нужно постараться выделить место для гардеробной. Это еще один из параметров комфорта.

Таким образом, успешная планировка складывается из нескольких составляющих:

  • эргономика — на маленькой площади приходится работать на минимальных размерах и отступах
  • продумывание сценария жизни в квартире в любое время суток
  • учет индивидуальных особенностей и привычек
  • знание и умение пользоваться правилами перепланировки
  • понимание принципов устройства инженерных коммуникаций

#дизайн интерьеров #дизайн квартир #планировка дома #планировка квартиры

ЧИТАЙТЕ ТАКЖЕ:

Больше здесь: Дизайн.

Источник статьи: Планировка маленьких квартир: советы экспертов.